L’agenzia Valore Casa Immobiliare di Borgo Valsugana propone in esclusiva un’interessante opportunità immobiliare nel comune di Castel Ivano, nella tranquilla frazione di Villa Agnedo. Questa località della Valsugana è apprezzata per il contesto naturale, la tranquillità e la buona presenza di servizi, offrendo un ambiente ideale per chi desidera vivere in una zona verde e piacevole senza rinunciare alla comodità della vita quotidiana. Il territorio è inoltre caratterizzato dalla presenza dello storico Castel Ivano, che contribuisce al fascino e alla storia della zona.
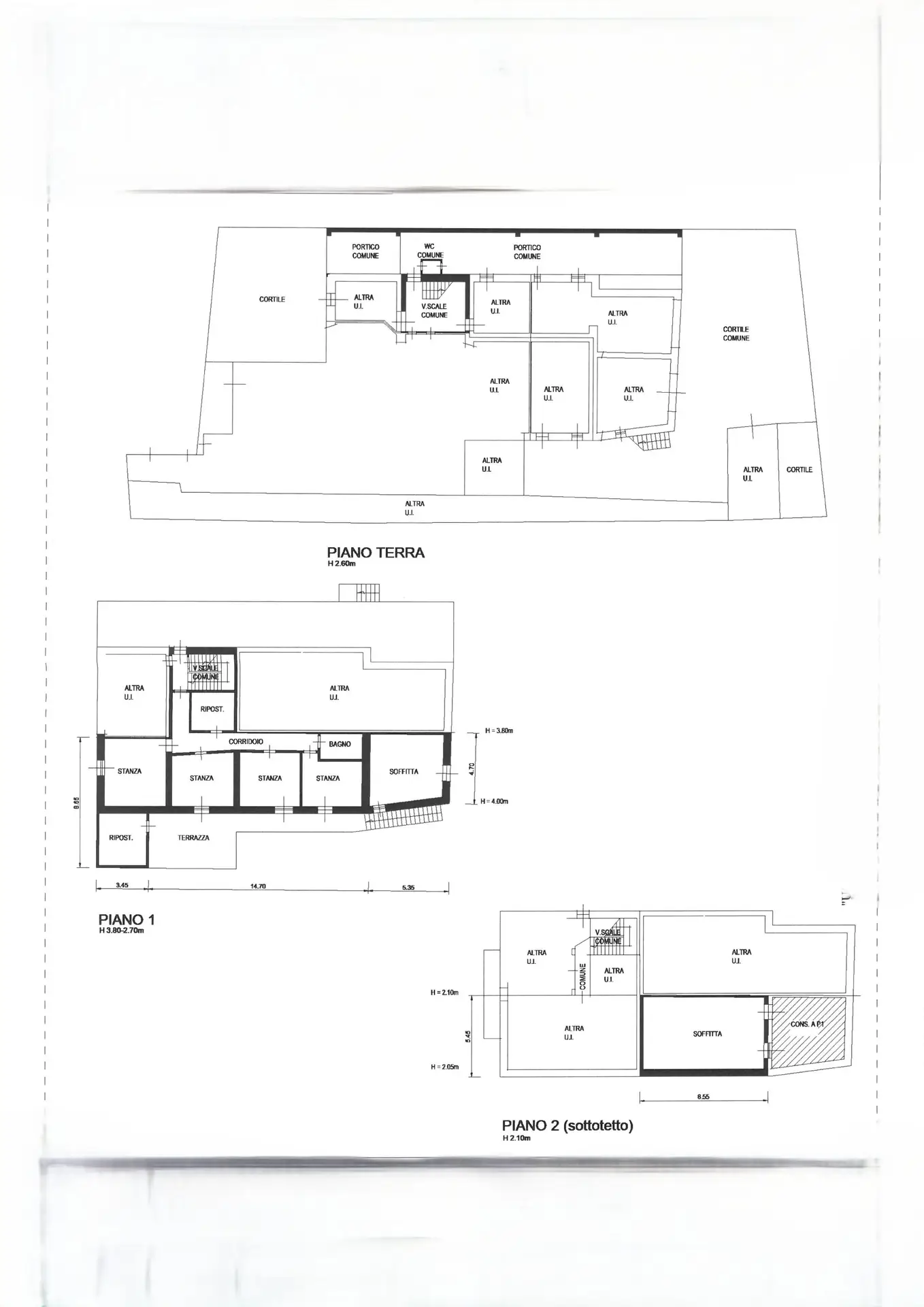
In questo contesto proponiamo un ampio appartamento di circa 120 mq, situato al primo piano, una soluzione che si distingue per gli spazi generosi e per le molte possibilità di personalizzazione. L’immobile necessita di lavori di ristrutturazione, rappresentando quindi un’ottima opportunità per chi desidera creare una casa su misura, valorizzando al meglio gli ambienti.
L’abitazione si compone di ingresso sulla zona giorno, dalla quale si sviluppano gli altri spazi della casa, tre stanze di ampia metratura e il bagno. A valorizzare ulteriormente l’immobile è la presenza di un ampio terrazzo di circa 30 mq, uno spazio ideale per momenti di relax all’aperto, pranzi estivi o per creare una piacevole area living esterna.
Uno dei punti di forza della proprietà è inoltre l’ampio spazio verde di proprietà esclusiva, sempre più ricercato da chi desidera vivere a contatto con la natura e godere di spazi esterni privati.
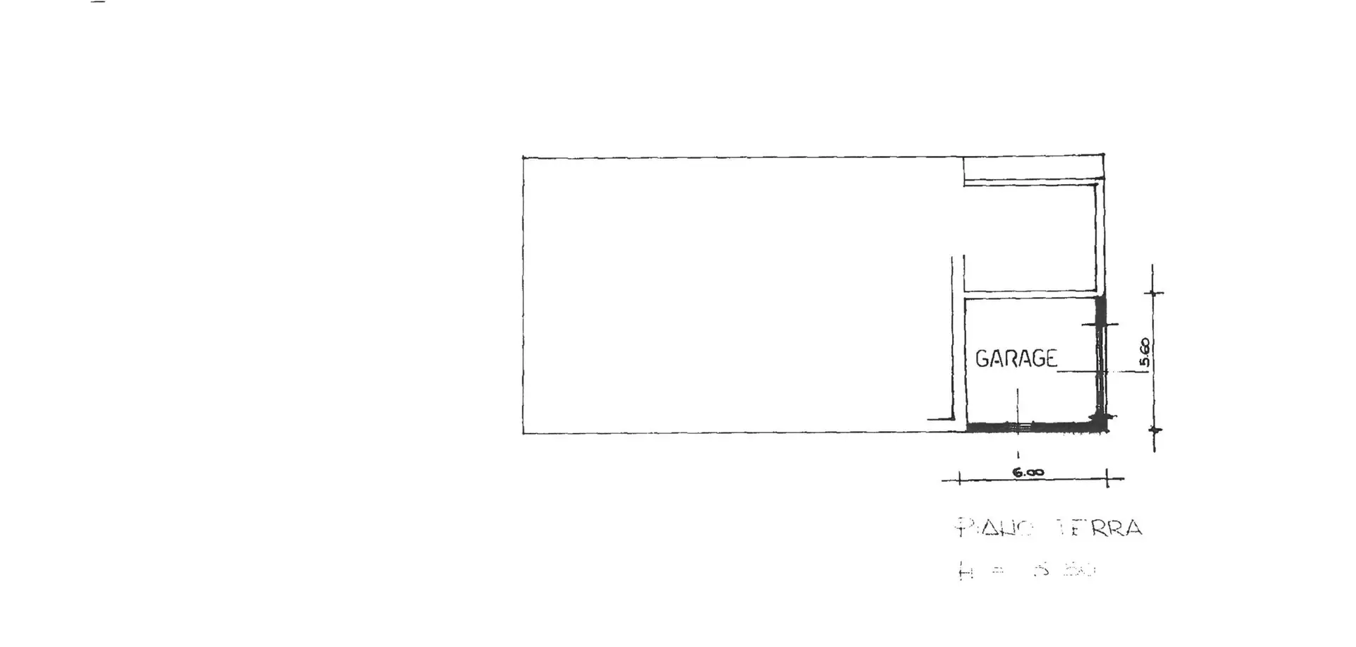
La proprietà è completata da diversi spazi accessori che ne aumentano la funzionalità: al secondo piano si trovano due ampie soffitte di proprietà esclusiva, mentre al piano terra sono presenti tre cantine, garage e posto auto, elementi che rendono l’immobile particolarmente pratico e completo.
Una soluzione ideale per chi è alla ricerca di spazi ampi, potenziale di valorizzazione e tranquillità, con la possibilità di realizzare una casa accogliente e personalizzata nel cuore della Valsugana.
Per maggiori informazioni o per organizzare una visita, Valore Casa Immobiliare è a disposizione.
