APPARTAMENTO DI AMPIA METRATURA IN PIENO CENTRO
Descrizione
Valore Casa Immobiliare propone in esclusiva un appartamento di ampia metratura nel cuore del centro storico di Borgo Valsugana, situato al secondo piano di una palazzina storica.
L’immobile si presenta in buono stato, subito abitabile, luminoso e spazioso, con ambienti generosi e corridoi che collegano in modo armonioso tutte le stanze.
Gli infissi in triplo vetro, installati nel 2017, garantiscono comfort e isolamento, mentre gli impianti, rinnovati nei primi anni 2000, assicurano funzionalità e sicurezza.
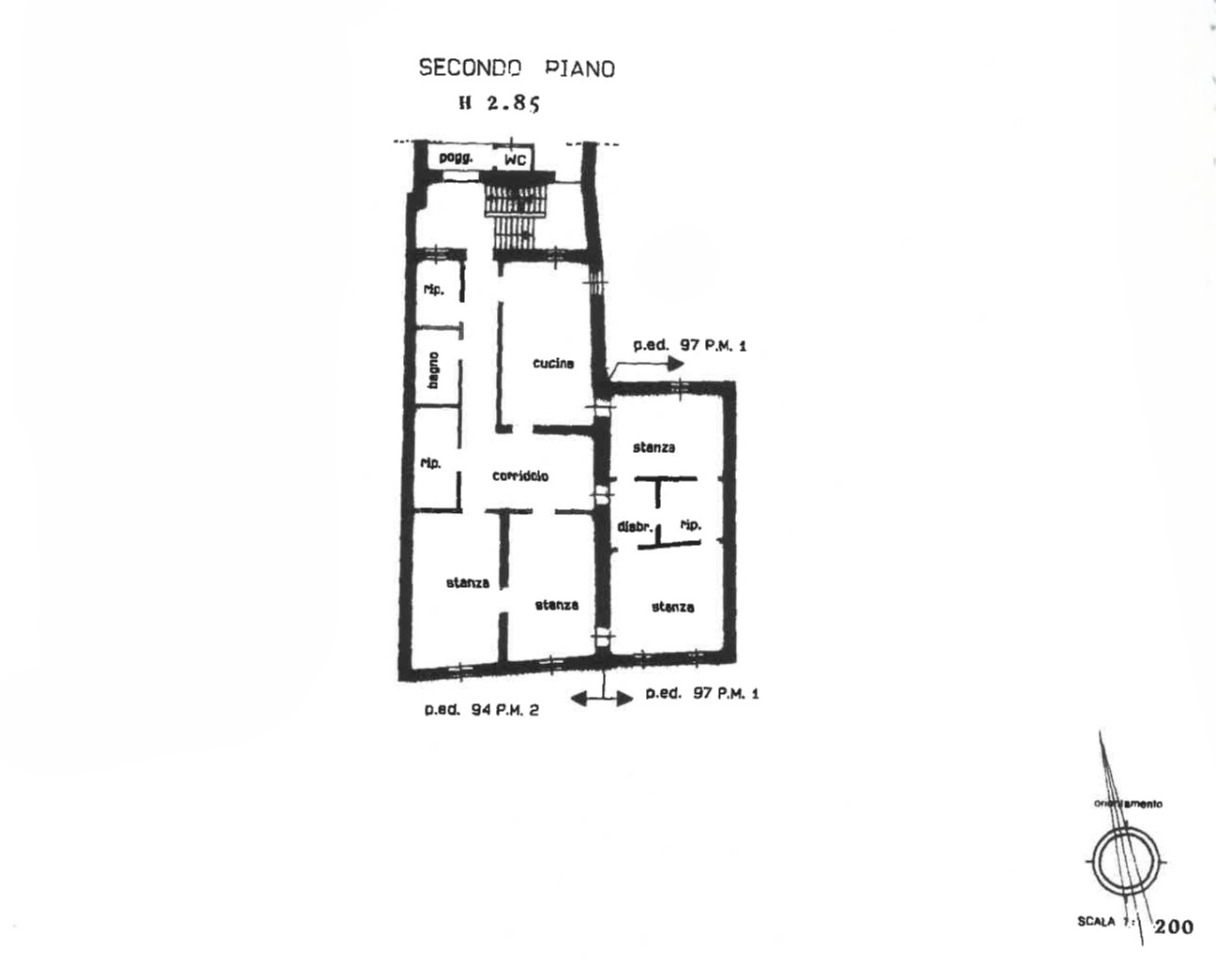
L’appartamento si compone di tre camere da letto, di cui la padronale con cabina armadio, bagno, cucina abitabile, zona salotto, dispensa e vano caldaia con lavanderia. Prima di varcare la porta d’ingresso si trova un piccolo poggiolo con annesso ripostiglio, versatile anche come cantina.
Il vero punto di forza dell’immobile è la posizione centrale unita all’ampiezza degli spazi, che lo rendono ideale per chi cerca una casa elegante, confortevole e ricca di charme nel cuore di Borgo Valsugana.
Indirizzo
-
Indirizzo BORGO VALSUGANA
-
Nazione Italia
-
Provincia Trento
-
Città/Paese Borgo Valsugana
Panoramica
- ID Proprietà 2781
- Prezzo €135.000
- Tipologia Appartamenti
- Stato proprietà In vendita
- Num. locali 6
- Camere da letto 3
- Bagni 1
- Anno di Costruzione 1960
- Superficie 170 m2
- Etichetta IN TRATTATIVA
- Lavanderia si
- Lati liberi 2
- Esposizione S-N
- Riscaldamento autonomo, radiatori
- Piano secondo
- Stato abitabile
- Serramenti triplo vetro, PVC
- Locali deposito si
- Cucina abitabile si
Contatto
Valore Casa Immobiliare
Venditore Proprietà
