APPARTAMENTO TRE STANZE CON GIARDINO
Descrizione
Valore Casa Immobiliare propone in esclusiva un interessante e ricercato quadrilocale al piano terra con giardino privato, situato in una tranquilla e piacevole zona residenziale.
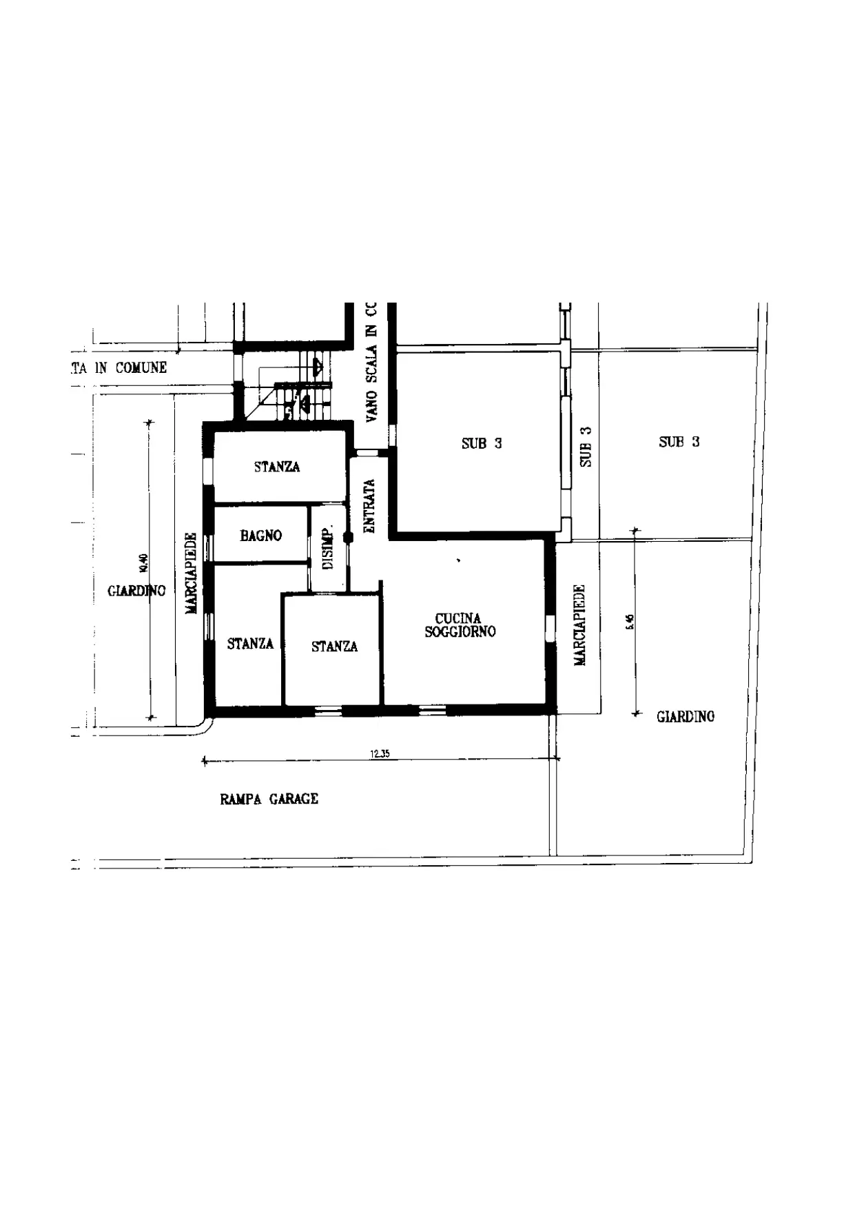
L’immobile, pronto da abitare, si apre su un accogliente ingresso che conduce all’ampia zona giorno composta da una cucina a vista e un luminoso soggiorno impreziosito da una grande porta finestra che offre l’accesso diretto al generoso giardino esposto a Sud, ideale per momenti di relax all’aperto o per pranzi e cene in compagnia.
La zona notte, ben distribuita, comprende un bagno finestrato, un pratico disbrigo con armadiature a muro e tre comode camere da letto: una spaziosa matrimoniale, una singola ampia e una classica singola con uscita diretta su un’ulteriore porzione di giardino riservato.
A completare la proprietà vi sono un comodo posto auto coperto e un ampio locale deposito, perfetto per soddisfare ogni esigenza di spazio. Un’opportunità abitativa completa e ben strutturata, ideale per chi cerca comfort, funzionalità e uno sfogo esterno privato in un contesto sereno e ben collegato.
Indirizzo
-
Indirizzo BORGO VALSUGANA
-
Nazione Italia
-
Provincia Trento
-
Città/Paese Borgo Valsugana
Panoramica
- ID Proprietà 2781
- Prezzo €215.000
- Tipologia Appartamenti
- Stato proprietà In vendita
- Num. locali 4
- Camere da letto 3
- Bagni 1
- Anno di Costruzione 2001
- Superficie 120 m2
- Etichetta IN TRATTATIVA
- Cantina 1
- Lati liberi 3
- Esposizione N-O-S
- Riscaldamento autonomo
- Piano terra
- Giardino si, due lati
- Stato abitabile
- Posto auto coperto
Contatto
Valore Casa Immobiliare
Venditore Proprietà
